About Dropping In....

IF YOU’RE GOING TO MAKE THIS MODULAR, DROP IN TOWERS ARE ONE MORE THING TO SET UP...THIS .COULD BE A REAL PAIN .. A WAY AROUND THIS WOULD BE TO PERMANENTLY INSTALL JUST THEM (DIG HOLES, PUT THEM IN THE GROUND,  WITH CONCRETE), AND ATTACH THE HALFPIPE TO THEM, OR IF YOU’RE MAKING THIS PERMANENT..THEN IT DOESN’T MATTER..BOLT THE WHOLE THING TOGETHER..

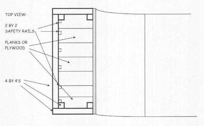
I HAVEN’T DONE THIS..BUT HERE ARE MY SUGGESTIONS:..USE PRESSURE TREATED 4 X 4 LUMBER FOR THE FRAME..THIS PROBABLY COULD SIT ON CONCRETE AS WELL:

SINCE I DID NOT CREATE THIS MYSELF, I’M NOT GOING TO PRETEND THAT I KNOW WHAT I’M DOING..IT WOULD BE VERY EASY TO ADD VERT TO THIS PIPE..JUST MAKE THE DROP IN TOWERS HIGHER AND ADD 2 OR 3 FEET OF PLYWOOD TO THE RAMP.

REAR VIEW:

**IF YOU KNOW HOW TO "PUMP" A HALFPIPE, YOU DON’T NEED STAIRS!!